Professional Designed Interior | Open Plan Living | Large Family Dining Kitchen | 2 Separate Reception Spaces | 4 Good Size Bedrooms | En-suite & Dress Room To Master | Stylish Bathroom | Downstairs WC/Toilet | Separate Utility Room | Cul-De-Sac Location | Landscaped Gardens | Driveway | Garage
Turnkey, Cul-de-sac location, close to the village, easy access to transport links and a motivated seller, what more can you ask for! … So, it is time to stop scrolling, get viewing and fall in love with this gem of a detached home.
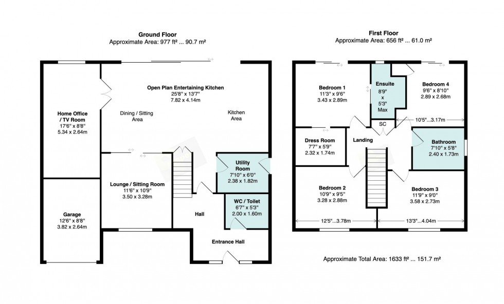
Before viewing this beautiful home, we urge you to take a look at the photos to get an idea of the design and style of the interior and exterior and then study the floor plan to ensure you understand the size of the room, configuration and layout of the accommodation and then, it is time to view this stunner of a home.
The accommodation is set over two levels, combining open plan living, with separate areas to enjoy moments of privacy. Downstairs you will notice off the entrance hall, there is a downstairs washroom with toilet, sink and plumbing for washing machine, and then a separate utility room positioned off a recess area which leads into or out of the kitchen area. You have two areas for sitting, watching TV, use as office space, a playroom or home gym perhaps, the choice is yours which way you decide to use these spaces which can be accessed via the large inviting, open plan entertaining kitchen.
This hub of the house will be difficult to forget, with spacious kitchen area, defined by the large island and range of bespoke kitchen units. Complementing the designer kitchen area is space to dine and combined this open plan space provides the perfect space to entertain family, or guests. Furthermore, you can open the large glass sliding doors to join the external and interior space seamlessly.
Upstairs, you will find 4 well-proportioned bedrooms, with a main bathroom fitted with a stylish suite. The main bedroom has its own dress room and ensuite, and both this and the other rear bedroom have sliding glass doors offering views into the private garden.
Outside you have side by side driveway parking for 2 to 3 cars, plus the garage space, which is perfect for storage, conversion potentially or for another car subject to size. To the rear, we hope our photographs show you how nice it is, with its mature back cloth or trees, plus low maintenance areas to enjoy such as entertaining decking and artificial grass.
Important - wherever you are reading this (online) please click on the link or tab which is named "Material Information" or “Important Information” This link offers more detailed and important information about the property and surrounding area including but not limited to; tenure, title information, local planning applications, schools, transport, flood risks etc.
Tenure: Leasehold
Lease Dates: 999 Years from 15.11.1961
Ground Rent: £16
Disclaimer: If you are reading this disclaimer on an advert either printed by us or yourself please visit the digital property page for the full marketing disclaimer on this property before committing to purchase or renting. Alternatively please request the disclaimer to be printed off separately. Certain websites may also promote our properties without our consent and we will not be held responsible for their omission of this disclaimer.
Material Information / Important Information is provided by Sprift, who in turn source their information from place as noted in the disclaimer section of the report. The information is provided in link format due to the ever changing data which is being reported and the volume of data which we would be unable to realistically write in the description above or recite verbally each time we speak to a potential buyer or tenant. The information is not to replace you taking advice from your solicitor, surveyor, or you doing your own research to ensure you are happy with the report. The various portals where you will read this disclaimer might rename the tab or even remove or change the link to this information. They might also display the link in a place not as easy to find as we would like it to be. We can provide the link on demand.
Marketing: Our floor plan may not show some small recess areas, usually measured into Bay Windows, may not show all support posts or chimney breasts and any floor area or total area measurements quoted will include all the areas shown on the floor plan, unless otherwise noted, inc but not limited to attached or integral garages. We do not recommend you use our floor plan to decide on buying carpets or furniture without measuring the space yourself, as skirting boards may alter the space you require because we measure above skirting board level. No appliances including heating and electrics have or will be tested by Snapes Estate Agents and we cannot be held responsible for a seller changing or removing fittings which are currently shown or mentioned in our marketing. Images Including Videos: Our photos and videos are provided to show the property in the best possible light and may have had some editing enhancements to improve the quality of the photo. The photos should not be used as an indication of what is included in the sale or rental lease, both internally and externally. If buying we strongly advise you consult with the Fixture and Fittings Form provided by the seller’s solicitor once a sale has been agreed, or when offering make it known to the office or your solicitor if there are any items you expect or want to be left, so this can be agreed prior to a sale progressing.
Property ID: 27f7106e-a9ac-4586-bbc9-d9896cc9ad7c
Tax Band | % | Taxable Sum | Tax |
---|