No Chain | Central Village Location | 3 Bedrooms (2 Upstairs & 1 Downstairs) | Shower Room Downstairs | Bathroom Upstairs | Large Lounge | Good Size Breakfast Dining Kitchen | At Home Office | Utility Cupboard | Eaves Storage Spaces | Driveway Parking | Front Lawn Area | South Facing Rear Garden
We are delighted to offer for sale this charming 3 bedroom semi detached home, which offers well presented and well proportioned accommodation over 2 levels.
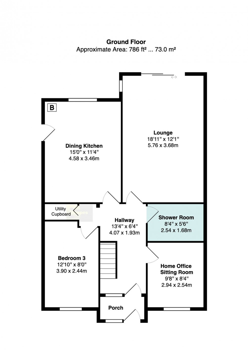
We trust our photographs will help best with the style and design of the home, an our floor plan will give you a good idea of the shape, layout and size of the rooms on offer, however the very best way to appreciate this home is to view and fully take in the light, bright and airy rooms.
In brief the accommodation comprises; a porch which leads into the. main reception hall and from there you have access to all of the ground floor rooms, and first floor via the stairs case. Once inside you have a at home office off the hallway which could be used for a multitude of purposes and has a window to the front aspect. Adjacent to this room you have the downstairs shower room which is fully fitted and perfect to serve daytime living and also anyone using the ground floor bedroom in the evenings. The across the rear of the accommodation you have the large lounge with sliding doors leading out into the rear garden.
There is also a fitted fireplace to one wall. Next to the lounge is the spacious breakfast kitchen which is fitted with an extensive range of units (see photo) and offers space to dine. There is a window to the rear aspect in the kitchen and access to the rear garden. (Note the boiler is located in the cupboard next to the kitchen door. Also on the ground floor you will notice there is a double bedroom with window to the front aspect and utility cupboard. Upstairs there are 2 double bedrooms wit one to the front aspect and one to the rear. There is also a bathroom on this level (see phtos) plus access into two eaves storage space facilities.
Outside to the front there is a lawn area plus driveway for two cars. At the rear there is a lovely South facing rear garden with lawn area and flower bed borders. There is also 2 sheds and a patio area abutting the home.
Important - Please click on the "Material Information" link for more important information.
Tenure: Freehold
Disclaimer: If you are reading this disclaimer on an advert either printed by us or yourself please visit the digital property page for the full marketing disclaimer on this property before committing to purchase. Alternatively please request the disclaimer to be printed off separately. Certain websites may also promote our properties without our consent and we will not be held responsible for their omission of this disclaimer.
Material Information has been sourced from various official and 3rd party sources. For more information please email " compliance @ snapes . co . uk " with the specific property your enquiry relates to. We strongly advise you consult a Solicitor and/or a surveyor and carry out your own research on the information provided to ensure there have been no changes since the information was sourced as we do not check for changes which may happen after the listing was made available. For broadband/mobile services we urge you to contact your provider to ensure your the service you need and your device is compatible. Human error by 3rd party data inputters, and a lag in data being transposed to digital records are some of the reasons the above information may be outdated before or after you view.
Marketing: Our floor plan may not show some small recess areas, support posts or chimney breasts and any floor area or total area measurements quoted will include all the areas shown on the floor plan, unless otherwise noted, inc but not limited to attached or integral garages. We do not recommend you use our floor plan to decide on buying carpets or furniture without measuring the space yourself, as skirting boards may alter the space you require because we measure above skirting board level. No appliances including heating and electrics have or will be tested by Snapes Estate Agents and we cannot be held responsible for a seller changing or removing fittings which are currently shown or mentioned in our marketing. Images Including Videos: Our photos and videos are provided to show the property in the best possible light and may have had some editing enhancements to improve the quality of the photo. The photos should not be used as an indication of what is included in the sale, both internally and externally. We strongly advise you consult with the Fixture and Fittings Form provided by the seller’s solicitor once a sale has been agreed, or when offering make it known to the office or your solicitor if there are any items you expect or want to be left, so this can be agreed prior to a sale progressing.
Property ID: 62f46f88-26b1-41a8-bed4-2195b766272a
Tax Band | % | Taxable Sum | Tax |
---|