** PART EX - QUICK MOVE INCENTIVE ** | No Onward Chain | Stylish Interior | Spacious Living Accommodation | 4 Double Bedrooms | 3 Levels of Accommodation | Contemporary Entertaining Kitchen | Adaptable Lounge / Diner | Downstairs Toilet | 2 Bathrooms | Garage | Parking Spaces | Enclosed Rear Garden
***PART EX CONSIDER - STRUGGLING TO SELL - OR WANT A QUICK AND EASY MOVE? CONTACT US FOR FURTHER DETAILS***
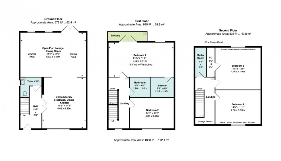
We are delighted to offer for sale this exceptional 4-bedroom semi-detached house, perfectly positioned in a charming and secure gated development of just 5 properties. Step inside this stunning residence to discover a property that radiates sophistication and elegance. The spacious and adaptable living spaces are spread over 3 levels, boasting a stylish open plan living area, a modern fitted entertaining kitchen, and a large adaptable lounge dining room. The attractive hallways and landings gracefully connect each level, enhancing the flow and ambience of the home. Upstairs, you will find 4 double bedrooms, with the main bedroom featuring a walk-out balcony and its own en-suite shower room. Not forgetting the main family bathroom and the additional downstairs toilet, offering a total of 3 toilets for your convenience. The property also comes with a garage for parking or storage, as well as extra parking spaces available. The house offers a blend of comfort and luxury, making it the ideal choice for those seeking a high standard of living.
Venturing outside, the property boasts a small front garden area and an enclosed rear garden, creating the perfect sanctuary for relaxation and entertainment. The rear garden backs onto a wooded backdrop, providing a serene and private retreat for its residents. Whether you are enjoying a cup of coffee in the morning or hosting a barbeque with friends in the evening, the outdoor spaces offer endless possibilities for creating memorable moments. If you are considering a move up the property ladder, our client would even consider a part exchange, making the transition to this dream home even smoother. Additionally, for those looking for a quick move, this property is offered for sale with no vendor chain, ensuring a seamless and efficient process. Don't miss out on the opportunity to experience luxury living in this exceptional property - book a viewing today and start envisioning the endless possibilities that await you in this prestigious abode.
Important - wherever you are reading this (online) please click on the link or tab which is named "Material Information" or “Important Information” This link offers more detailed and important information about the property and surrounding area including but not limited to; tenure, title information, local planning applications, schools, transport, flood risks etc.
Tenure: Leasehold
Lease Dates: 999 Years from 01.09.2003
Ground Rent: TBC
Service Charge: TBC
Other: Please see Important Information Link.
Disclaimer: If you are reading this disclaimer on an advert either printed by us or yourself please visit the digital property page for the full marketing disclaimer on this property before committing to purchase or renting. Alternatively please request the disclaimer to be printed off separately. Certain websites may also promote our properties without our consent and we will not be held responsible for their omission of this disclaimer.
Material Information / Important Information is provided by Sprift, who in turn source their information from place as noted in the disclaimer section of the report. The information is provided in link format due to the ever changing data which is being reported and the volume of data which we would be unable to realistically write in the description above or recite verbally each time we speak to a potential buyer or tenant. The information is not to replace you taking advice from your solicitor, surveyor, or you doing your own research to ensure you are happy with the report. The various portals where you will read this disclaimer might rename the tab or even remove or change the link to this information. They might also display the link in a place not as easy to find as we would like it to be. We can provide the link on demand.
Marketing: Our floor plan may not show some small recess areas, usually measured into Bay Windows, may not show all support posts or chimney breasts and any floor area or total area measurements quoted will include all the areas shown on the floor plan, unless otherwise noted, inc but not limited to attached or integral garages. We do not recommend you use our floor plan to decide on buying carpets or furniture without measuring the space yourself, as skirting boards may alter the space you require because we measure above skirting board level. No appliances including heating and electrics have or will be tested by Snapes Estate Agents and we cannot be held responsible for a seller changing or removing fittings which are currently shown or mentioned in our marketing. Images Including Videos: Our photos and videos are provided to show the property in the best possible light and may have had some editing enhancements to improve the quality of the photo. The photos should not be used as an indication of what is included in the sale or rental lease, both internally and externally. If buying we strongly advise you consult with the Fixture and Fittings Form provided by the seller’s solicitor once a sale has been agreed, or when offering make it known to the office or your solicitor if there are any items you expect or want to be left, so this can be agreed prior to a sale progressing.
Property ID: 7a45ceef-6273-4bcb-90da-91cf53043994
Tax Band | % | Taxable Sum | Tax |
---|