Commanding Corner Plot | Detached Home For Sale | 4 Well Proportioned Bedrooms | Spacious Lounge Area | Good Size Dining Area | Conservatory | Kitchen | Downstairs WC/Toilet | Integrated Garage | Bathroom with Shower Over Bath | Driveway Parking | Front, Rear & Side Gardens | Convenient Location
We are delighted to offer for sale this well presented 4 bedroom detached home, which is positioned on a commanding corner plot, within a popular residential Bramhall development.
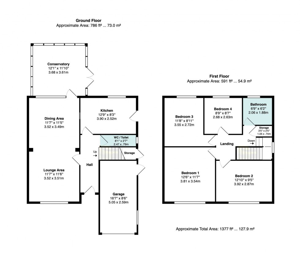
Whilst reading this short property description we recommend you study our floor plans and photographs to get a better understanding of the layout, size and style of accommodation within this property; however we strongly recommend you view this lovely spacious home to fully appreciate the many benefits on offer. In brief the accommodation comprises: You first enter the home via the front door and step into the entrance hall which offers access to the first floor, downstairs toilet, kitchen and main lounge area. If you look at our floor plan you will notice the garage is built into the ground floor space and subject to building regulations you could easily create internal access to this space from the hall, which could then be converted if you were looking for more living space. The garage also provides excellent extra storage or parking for a suitably sized car.
The main lounge area is located to the front of the ground floor accommodation (See photo) and from here there is access through to the dining area which in turn leads to a spacious conservatory which offers extra space to sit and relax, plus access via double doors out to the patio area. Adjacent to the dining area is the kitchen which also has a service hatch connecting the two spaces. The kitchen is fitted with a range of units and space for appliances plus some fitted appliances (See photos) and there is a window looking out to the rear aspect plus door leading out to the side space. As mentioned above there is also the downstairs WC / Toilet which has a toilet and sink, plus window to the side aspect.
Upstairs the benefits to this home continues, with well proportioned bedrooms. Two of the bedrooms have windows looking over the front aspect and other two overlook the rear aspect. As you will see on our photos, three of the bedrooms have a range of fitted wardrobes to one wall, providing useful extra storage space and in addition there is a box room storage closet off the landing. The bathroom (See photo) is fitted with a bath with shower over, wash hand basin and toilet, with tiled walls and a window to the rear aspect.
The location is fantastic, with easy access to several popular walking routes, such as Happy Valley and Bramhall Park. Commuter links run close by, and both schools and transport links including Bramhall Train Station are within easy reach.
Important - Please click on the "Material Information" link for more important information.
Tenure: Freehold
Rent Charge: c£21.00 Per Year
Rent Charge is collected £10.50 twice yearly.
Other: See Land Note Below
Around 35 years ago the rear boundary at this property was altered and now encloses a small 0.01 acre parcel of land under the title number CH23933. We understand this to be the old Fred Perry way, and other sales close by also had a section (larger in some cases) within the now physical boundaries. The owner is not looking to re-position the fence / hedge after all this time. The title number CH23933 which shows this 0.01 acre of land is to be considered when buying this property.
Disclaimer: If you are reading this disclaimer on an advert either printed by us or yourself please visit the digital property page for the full marketing disclaimer on this property before committing to purchase. Alternatively please request the disclaimer to be printed off separately. Certain websites may also promote our properties without our consent and we will not be held responsible for their omission of this disclaimer.
Material Information has been sourced from various official and 3rd party sources. For more information please email " compliance @ snapes . co . uk " with the specific property your enquiry relates to. We strongly advise you consult a Solicitor and/or a surveyor and carry out your own research on the information provided to ensure there have been no changes since the information was sourced as we do not check for changes which may happen after the listing was made available. For broadband/mobile services we urge you to contact your provider to ensure your the service you need and your device is compatible. Human error by 3rd party data inputters, and a lag in data being transposed to digital records are some of the reasons the above information may be outdated before or after you view.
Marketing: Our floor plan may not show some small recess areas, support posts or chimney breasts and any floor area or total area measurements quoted will include all the areas shown on the floor plan, unless otherwise noted, inc but not limited to attached or integral garages. We do not recommend you use our floor plan to decide on buying carpets or furniture without measuring the space yourself, as skirting boards may alter the space you require because we measure above skirting board level. No appliances including heating and electrics have or will be tested by Snapes Estate Agents and we cannot be held responsible for a seller changing or removing fittings which are currently shown or mentioned in our marketing. Images Including Videos: Our photos and videos are provided to show the property in the best possible light and may have had some editing enhancements to improve the quality of the photo. The photos should not be used as an indication of what is included in the sale, both internally and externally. We strongly advise you consult with the Fixture and Fittings Form provided by the seller’s solicitor once a sale has been agreed, or when offering make it known to the office or your solicitor if there are any items you expect or want to be left, so this can be agreed prior to a sale progressing.
Property ID: 99cceb6f-5e82-4c3a-a409-7934790c2303
Tax Band | % | Taxable Sum | Tax |
---|