Extended Detached Home | 5 Good Size Bedrooms | 2 Bathrooms | Open Plan Living Space | Dining Area | Kitchen Area | Sitting Area | Separate Lounge | Downstairs Toilet | Storage Coats Closet | Attached Garage | Ample Driveway Parking | South West Facing Rear Garden | Close to Village & Schools
Extended Detached Home | 5 Good Size Bedrooms | 2 Bathrooms | Open Plan Living Space | Dining Area | Kitchen Area | Sitting Area | Separate Lounge | Downstairs Toilet | Storage Coats Closet | Attached Garage | Ample Driveway Parking | Good Size Landscaped Rear Garden | Close to Village & Schools
We are delighted to offer for sale this extended 5 bedroom detached house in a sought-after location. This property boasts a spacious layout perfect for modern family living. Step inside this extended detached home and be greeted by a warm ambience that flows effortlessly throughout. The south-west facing rear garden captures natural light, enhancing the sense of space and tranquillity.
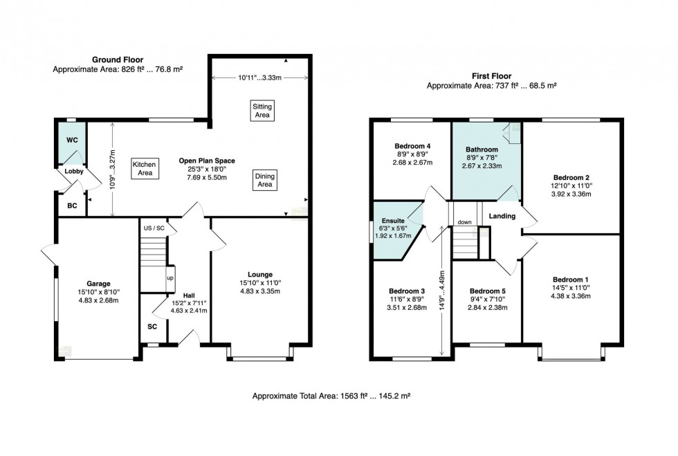
The property offers five generous bedrooms and two bathrooms, ensuring ample accommodation for the whole family. The heart of the home is the open-plan family dining kitchen, a versatile space that effortlessly combines a modern kitchen area with a dining and sitting zone, ideal for both casual family meals and formal entertaining. The separate lounge provides a cosy retreat, while the convenient downstairs toilet/WC adds to the practicality of the layout. Ample storage facilities cater to the needs of a busy household, ensuring everything has its place. Outside, a driveway and attached garage offer parking convenience and secure storage, completing this stunning property's package.
The good size garden space provides endless possibilities for outdoor living. With its desirable south-west orientation, the garden enjoys sunlight throughout the day, creating a bright and inviting atmosphere. This property is a haven for those seeking a peaceful retreat with the convenience of urban amenities within easy reach. To truly appreciate the lifestyle this home offers, we highly recommend viewing in person and exploring the vast potential this property provides for creating your dream living space.
Important - wherever you are reading this (online) please click on the link or tab which is named "Material Information" or “Important Information” This link offers more detailed and important information about the property and surrounding area including but not limited to; tenure, title information, local planning applications, schools, transport, flood risks etc.
Tenure: Leasehold
Lease Dates: 999 Years from 04.09.1961 to 05.09.2960
Rent Charge: £16.00 | £8 Paid Twice A Year
Disclaimer: If you are reading this disclaimer on an advert either printed by us or yourself please visit the digital property page for the full marketing disclaimer on this property before committing to purchase or renting. Alternatively please request the disclaimer to be printed off separately. Certain websites may also promote our properties without our consent and we will not be held responsible for their omission of this disclaimer.
Material Information / Important Information is provided by Sprift, who in turn source their information from place as noted in the disclaimer section of the report. The information is provided in link format due to the ever changing data which is being reported and the volume of data which we would be unable to realistically write in the description above or recite verbally each time we speak to a potential buyer or tenant. The information is not to replace you taking advice from your solicitor, surveyor, or you doing your own research to ensure you are happy with the report. The various portals where you will read this disclaimer might rename the tab or even remove or change the link to this information. They might also display the link in a place not as easy to find as we would like it to be. We can provide the link on demand.
Marketing: Our floor plan may not show some small recess areas, usually measured into Bay Windows, may not show all support posts or chimney breasts and any floor area or total area measurements quoted will include all the areas shown on the floor plan, unless otherwise noted, inc but not limited to attached or integral garages. We do not recommend you use our floor plan to decide on buying carpets or furniture without measuring the space yourself, as skirting boards may alter the space you require because we measure above skirting board level. No appliances including heating and electrics have or will be tested by Snapes Estate Agents and we cannot be held responsible for a seller changing or removing fittings which are currently shown or mentioned in our marketing. Images Including Videos: Our photos and videos are provided to show the property in the best possible light and may have had some editing enhancements to improve the quality of the photo. The photos should not be used as an indication of what is included in the sale or rental lease, both internally and externally. If buying we strongly advise you consult with the Fixture and Fittings Form provided by the seller’s solicitor once a sale has been agreed, or when offering make it known to the office or your solicitor if there are any items you expect or want to be left, so this can be agreed prior to a sale progressing.
Property ID: a40f81f3-d9ec-4336-b9b3-dc5348385ae5
Tax Band | % | Taxable Sum | Tax |
---|