No Onward Chain | Spacious Detached Home | Popular Cheadle Hulme Location | Close to Schools | 4 Good Size Bedrooms | Bathroom | Modern Breakfast Kitchen | Large Lounge | Dining Room | Conservatory | Downstairs Toilet | Integrated Garage | Driveway | Front Garden | Attractive Rear Garden
No Onward Chain | Spacious Detached Home | Popular Cheadle Hulme Location | Close to Schools | 4 Good Size Bedrooms | Bathroom | Modern Breakfast Kitchen | Large Lounge | Dining Room | Conservatory | Downstairs Toilet | Integrated Garage | Driveway | Front Garden | Attractive Rear Garden
____________________
If you are looking for quick and easy access to Cheadle Hulme schools, transport links and want to have the advantage of being on the borders of Bramhall so you can benefit from both Cheadle Hulme and Bramhall Village amenities, then look no further, as this spacious detached home has it all.
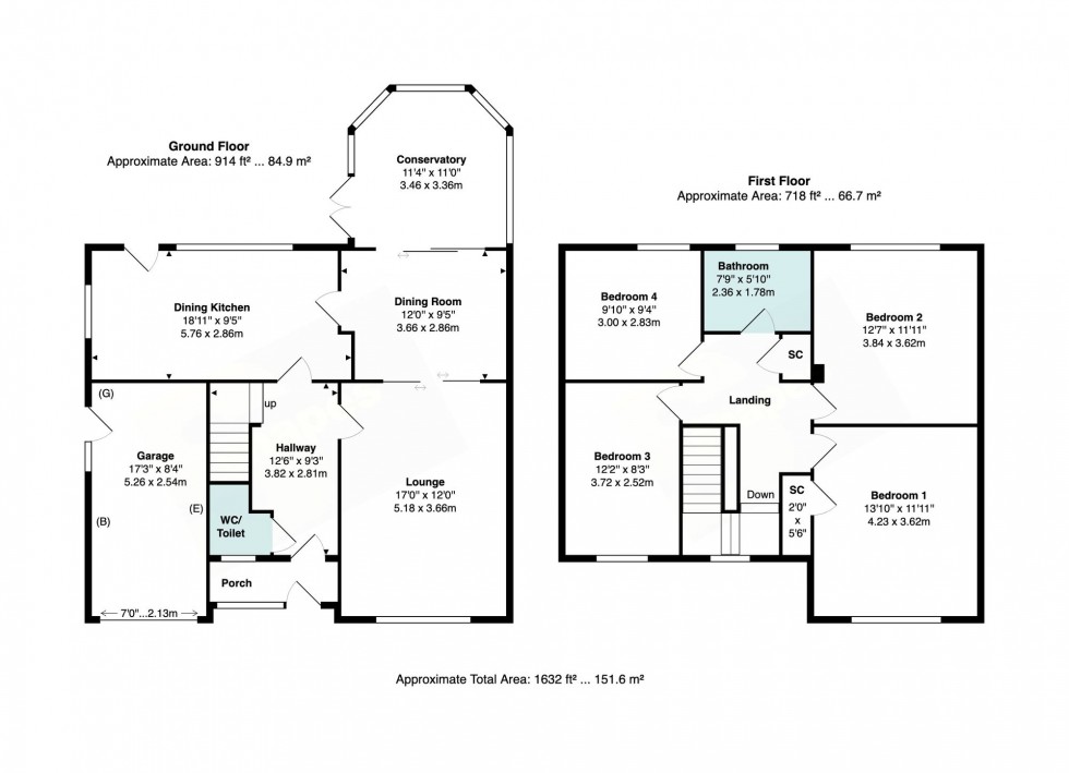
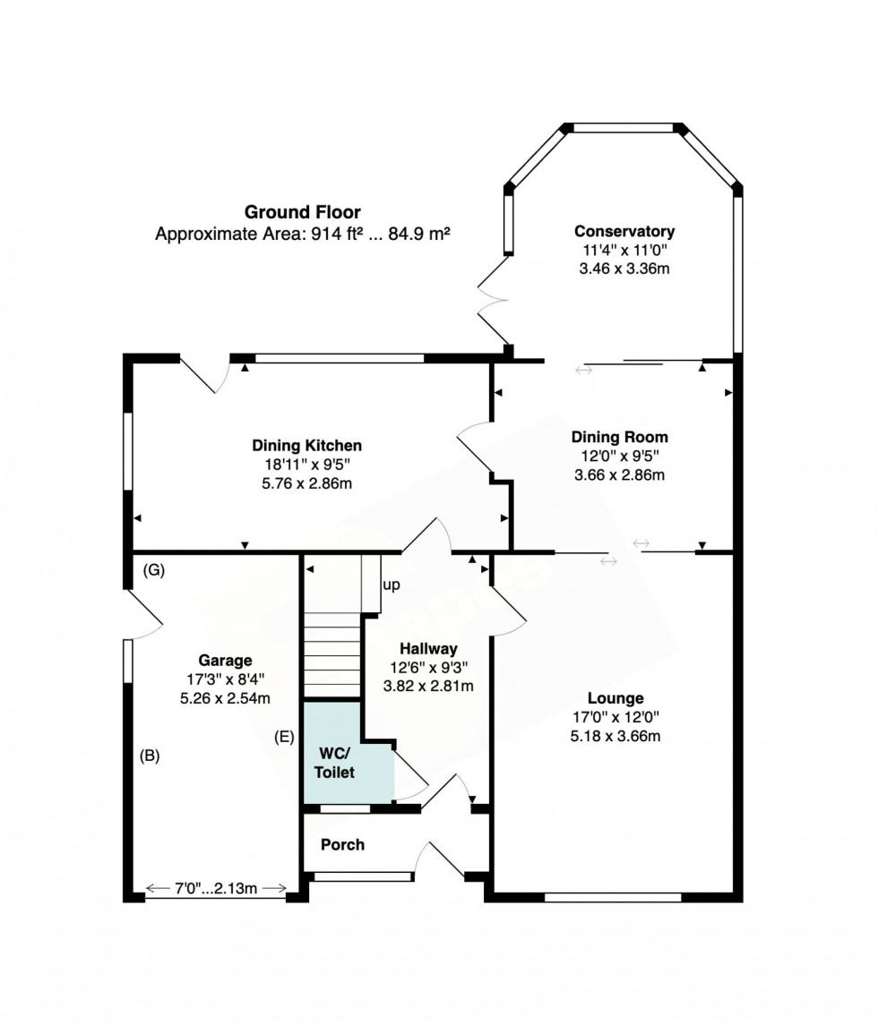
Before viewing, we urge you to study the floor plans, so you understand the size, shape and layout of the accommodation, and then we hope our photographs will give you an idea of the design and style of this home on both the inside and out.
The property boasts spacious and adaptable accommodation which in brief comprises: The entrance porch which leads into the hallway. From the hall, you have access to a downstairs WC with toilet and sink, plus access to the first floor via stairs, and doors leading to the spacious lounge and modern breakfast kitchen.
The lounge boasts impressive measurements and has a window looking out to the front aspect. The lounge has a set of double sliding doors which gives access to the dining room and the dining room in turn leads into the kitchen and through to the good size conservatory.
The kitchen you will notice has space for a dining table and chairs and has been refitted with a stylish kitchen with fitted appliances. Access into the rear garden can be gained from the kitchen and there is a window to the side aspect allowing in extra light, as well as the main window which offers a lovely view into the rear garden.
Upstairs there are 4 good size bedrooms in total, with 2 on either side of the accommodation and these are served by the family bathroom which has a shower over bath, wash hand basin and low-level WC/toilet
Outside, you will notice when you first arrive, that the property is set back from the road, beyond the grass verge, which due to its design provides an extra off road parking space, perfect for visitors! Then the front garden has a lawn area plus well stocked borders and a good size driveway leading to the garage and side gate access. The garage has the electric and gas meter plus the boiler and provides extra parking, storage or the potential of conversion perhaps.
At the rear there is a beautifully maintained and landscaped rear garden, with patio area abutting the home, plus ample lawn areas to enjoy and a feature decking space for sitting and enjoy a summer time drink, or maybe even a warm evening beverage if you like to prolong your time spent enjoying the fresh air.
____________________________
Important - wherever you are reading this (online) please click on the link or tab which is named "Material Information" or “Important Information link” This link offers more detailed and important information about the property and surrounding area including but not limited to; tenure, title information, local planning applications, schools, transport, flood risks etc.
Tenure: Freehold
Disclaimer: If you are reading this disclaimer on an advert either printed by us or yourself please visit the digital property page for the full marketing disclaimer on this property before committing to purchase or renting. Alternatively please request the disclaimer to be printed off separately. Certain websites may also promote our properties without our consent and we will not be held responsible for their omission of this disclaimer.
Material Information / Important Information is provided by Sprift, who in turn source their information from place as noted in the disclaimer section of the report. The information is provided in link format due to the ever changing data which is being reported and the volume of data which we would be unable to realistically write in the description above or recite verbally each time we speak to a potential buyer or tenant. The information is not to replace you taking advice from your solicitor, surveyor, or you doing your own research to ensure you are happy with the report. The various portals where you will read this disclaimer might rename the tab or even remove or change the link to this information. They might also display the link in a place not as easy to find as we would like it to be. We can provide the link on demand.
Marketing: Our floor plan may not show some small recess areas, usually measured into Bay Windows, may not show all support posts or chimney breasts and any floor area or total area measurements quoted will include all the areas shown on the floor plan, unless otherwise noted, inc but not limited to attached or integral garages. We do not recommend you use our floor plan to decide on buying carpets or furniture without measuring the space yourself, as skirting boards may alter the space you require because we measure above skirting board level. No appliances including heating and electrics have or will be tested by Snapes Estate Agents and we cannot be held responsible for a seller changing or removing fittings which are currently shown or mentioned in our marketing. Images Including Videos: Our photos and videos are provided to show the property in the best possible light and may have had some editing enhancements to improve the quality of the photo. The photos should not be used as an indication of what is included in the sale or rental lease, both internally and externally. If buying we strongly advise you consult with the Fixture and Fittings Form provided by the seller’s solicitor once a sale has been agreed, or when offering make it known to the office or your solicitor if there are any items you expect or want to be left, so this can be agreed prior to a sale progressing.
Property ID: cdd031ed-fc3e-4dae-8cb9-ffbd1f361a2d
Tax Band | % | Taxable Sum | Tax |
---|