With a little bit of humour and a whole lot of sincerity, we are trying to set the tone correctly for the owners of this property. So let’s get to the facts! This property needs updating! We might not be forgiven if we just wrote “do not view if you don’t want to do any work” as no viewings might lead to our client wondering if we have been a bit to direct, but maybe this is what we need to be, to ensure we don’t waste your time as much as everyone else’s.
So ask yourself before you call to view, because we will; Do you want to do work? how much work? and have you got the budget? All fair questions if truth be known.
So, to paint the picture with the level of works required: We guesstimate you could spend up to £50,000 on a standard refit, before adding the luxuries sometimes dreamt about when house hunting. By luxuries we mean adding an extension, knocking walls down, installing bi-fold doors, maybe a loft conversion, or a media wall, plus top of the range flooring and internal doors at £100 each, not £30!
What we are trying to say is: this home needs money spending on it, but it has been priced to reflect this! With completed sales on near-by homes with smaller rear gardens achieving between £425,000 to £450,000 during 2025, it would be fair to say, this property with the larger garden should well be worth more. Just to build a detached garage like it has would cost a pretty penny today.
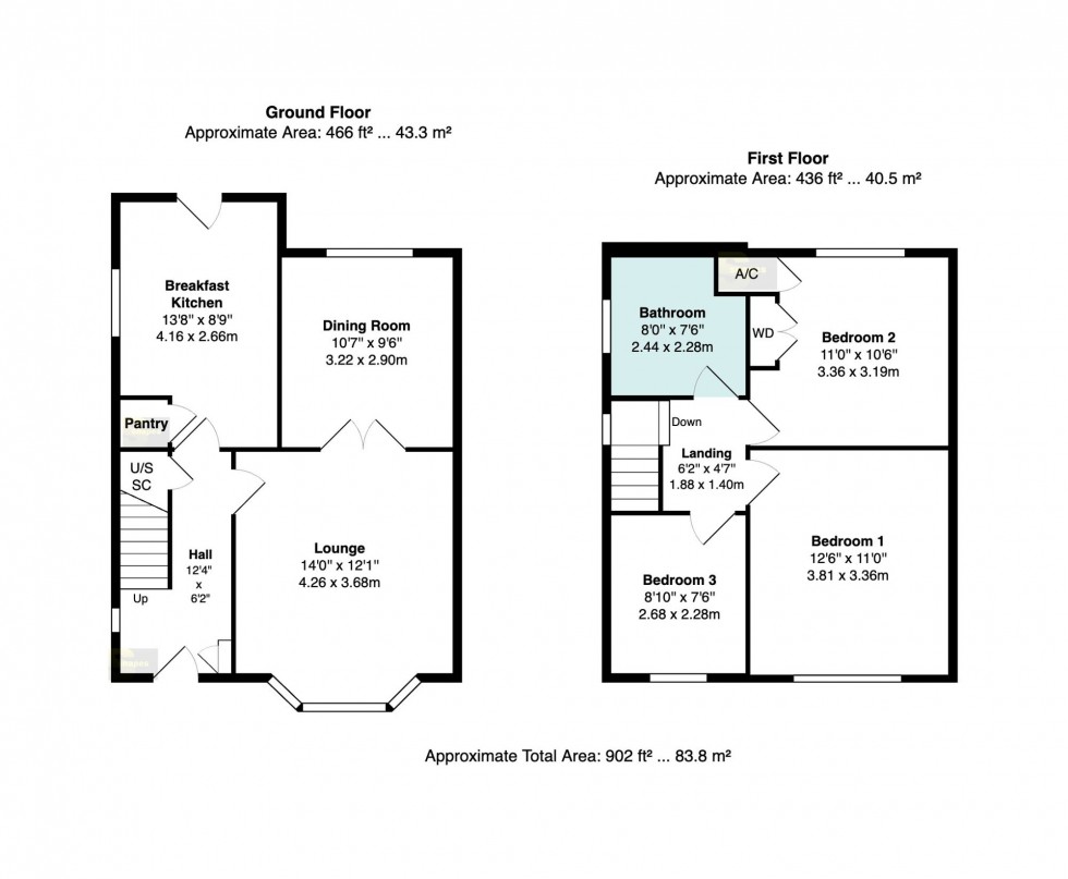
Strip back the above and what you have is a home, waiting for the next chapter of it’s life to be written. Could you live in the home? YES, and whilst you might decide you wouldn’t want to, it would be fair to admit, the property is not inhabitable, it is simply dated. Our floor plan will show the space, shape and size of the accommodation on offer and flicking through our photos will give you an idea of the style and design. We appreciate our photos do make rooms look bigger sometimes so again, we urge you to look at the floor plan.
So if you are looking to add your own taste to a property, to create a home to call your own, and you are fed up of viewing houses which are nice, but price to reflect a nice, which you would end up changing, then this might just be the property for you.
Important - wherever you are reading this (online) please click on the link or tab which is named "Material Information" or “Important Information” This link offers more detailed and important information about the property and surrounding area including but not limited to; tenure, title information, local planning applications, schools, transport, flood risks etc.
Tenure: Leasehold
Lease Dates: 999 Years from 16.03.1965 to 16.03.2964
Rent Charge: £16 Per Annum
Disclaimer: If you are reading this disclaimer on an advert either printed by us or yourself please visit the digital property page for the full marketing disclaimer on this property before committing to purchase or renting. Alternatively please request the disclaimer to be printed off separately. Certain websites may also promote our properties without our consent and we will not be held responsible for their omission of this disclaimer.
Material Information / Important Information is provided by Sprift, who in turn source their information from place as noted in the disclaimer section of the report. The information is provided in link format due to the ever changing data which is being reported and the volume of data which we would be unable to realistically write in the description above or recite verbally each time we speak to a potential buyer or tenant. The information is not to replace you taking advice from your solicitor, surveyor, or you doing your own research to ensure you are happy with the report. The various portals where you will read this disclaimer might rename the tab or even remove or change the link to this information. They might also display the link in a place not as easy to find as we would like it to be. We can provide the link on demand.
Marketing: Our floor plan may not show some small recess areas, usually measured into Bay Windows, may not show all support posts or chimney breasts and any floor area or total area measurements quoted will include all the areas shown on the floor plan, unless otherwise noted, inc but not limited to attached or integral garages. We do not recommend you use our floor plan to decide on buying carpets or furniture without measuring the space yourself, as skirting boards may alter the space you require because we measure above skirting board level. No appliances including heating and electrics have or will be tested by Snapes Estate Agents and we cannot be held responsible for a seller changing or removing fittings which are currently shown or mentioned in our marketing. Images Including Videos: Our photos and videos are provided to show the property in the best possible light and may have had some editing enhancements to improve the quality of the photo. The photos should not be used as an indication of what is included in the sale or rental lease, both internally and externally. If buying we strongly advise you consult with the Fixture and Fittings Form provided by the seller’s solicitor once a sale has been agreed, or when offering make it known to the office or your solicitor if there are any items you expect or want to be left, so this can be agreed prior to a sale progressing.
Property ID: d7a8bf78-0b12-4943-b575-b08d14683381
| Tax Band | % | Taxable Sum | Tax | 
|---|
